Update bouwvergunning van Djurs Sommerland

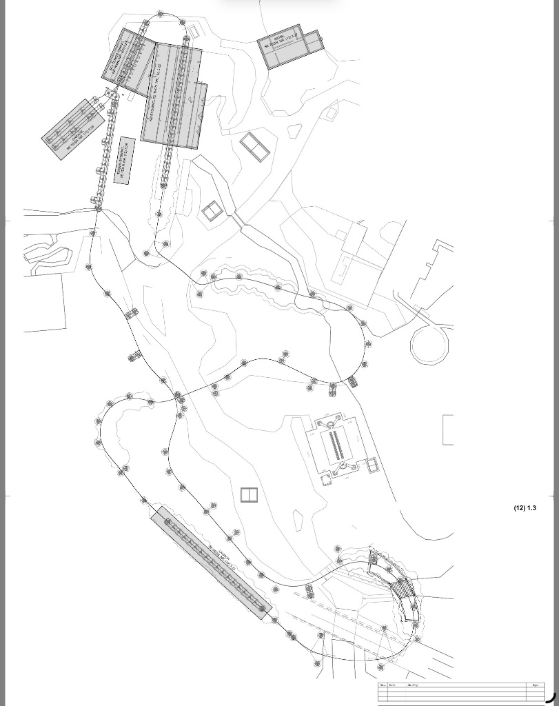
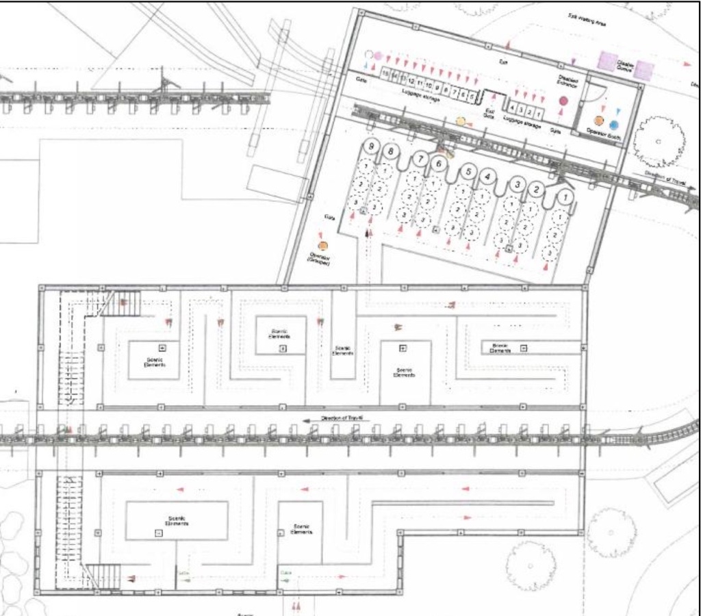
De bouwvergunning aanvraag voor de nieuwe coaster van het Deense pretpark Djurs Sommerland heeft een update gehad. Daar zijn nu enkele afbeeldingen aan toe gevoegd van het stationsgebouw, een kiosk gebouwtje en de wachtrij.

Bron: https://coasterforce.com/forums/threads/djurs-sommerland-midg%C3%A5rdsormen-intamin-hot-racer-2027.47291/post-1193605

Reacties zijn gesloten.